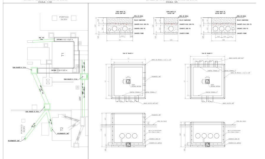
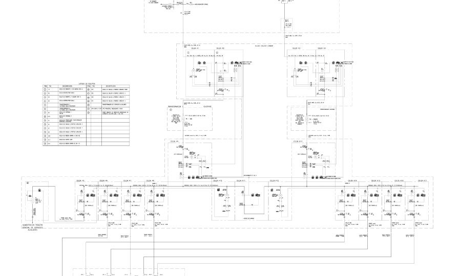
CLIENTE : SCHNEIDER ELECTRIC

PROYECTO : Diseño adecuación Shelter estación condor.

Ingeniería básica y de detalle para la actualización de canalización de media y baja tensión del shelter de estación cóndor en Yondó (Antioquia).